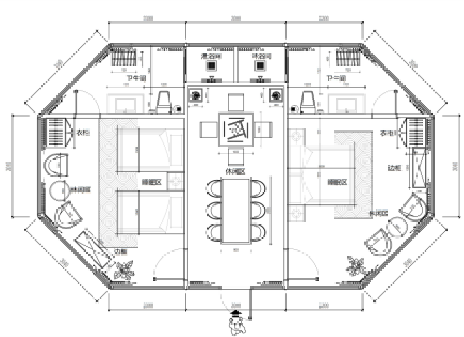
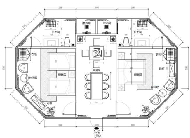
装配式建筑
主材:优质碳钢钢管(氟碳漆防锈处理) 外膜:PVDF优质膜材 内膜:PVC 墙体:双层中空玻璃 规格:12m*7.6m 套内面积:77㎡ 投影面积:86.54㎡ 抗风等级:10级以下
产品咨询